
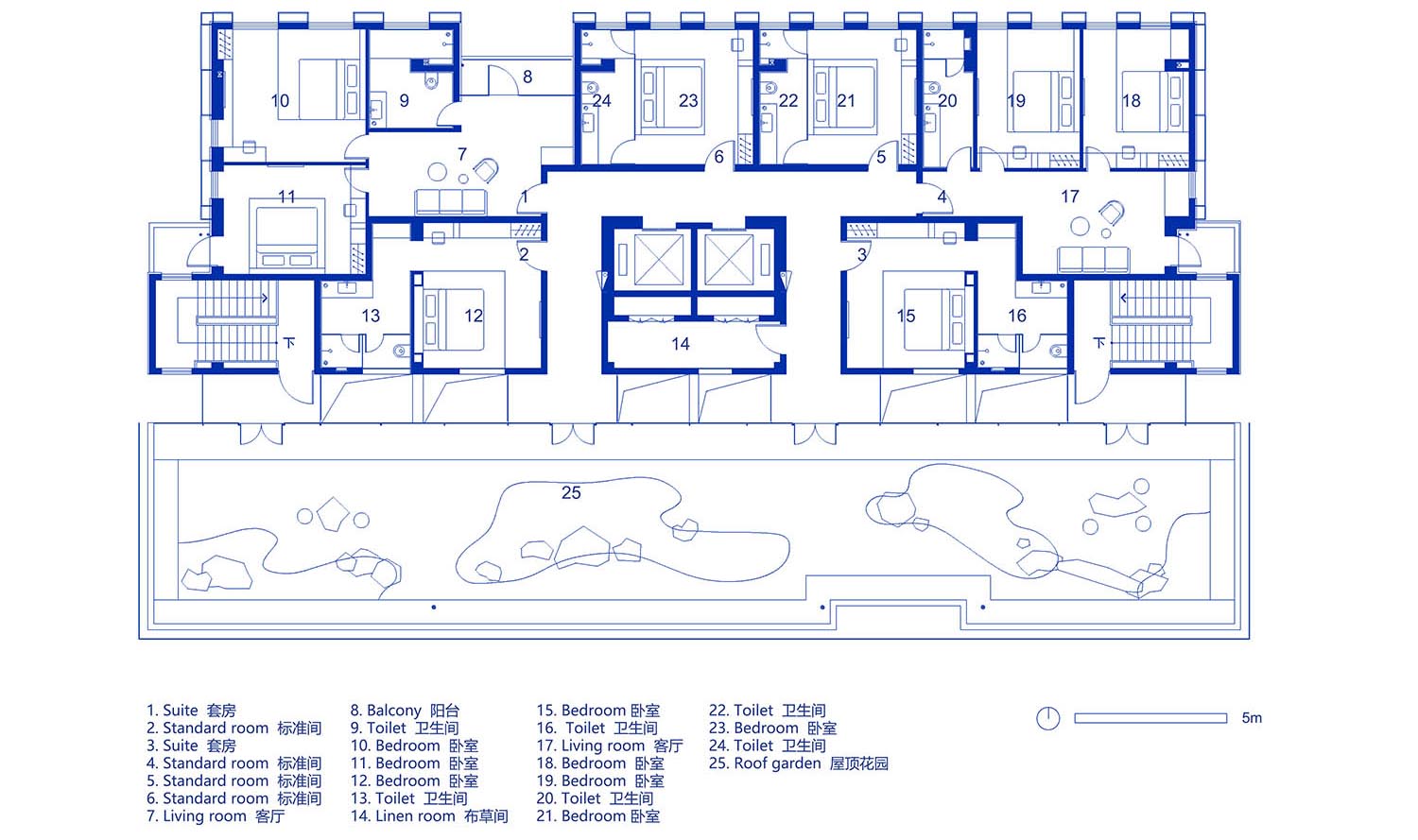
陕量办公总部位于浙江省嘉兴市,业主方在整栋购置了此办公楼后,希望能够将办公甚至办公之外的更多功能及可能性加入到这栋建筑中。
The CT Office is located in Jiaxing City, Zhejiang Province. After purchasing the entire office building, the client wishes to bring more functions and possibilities to the building.
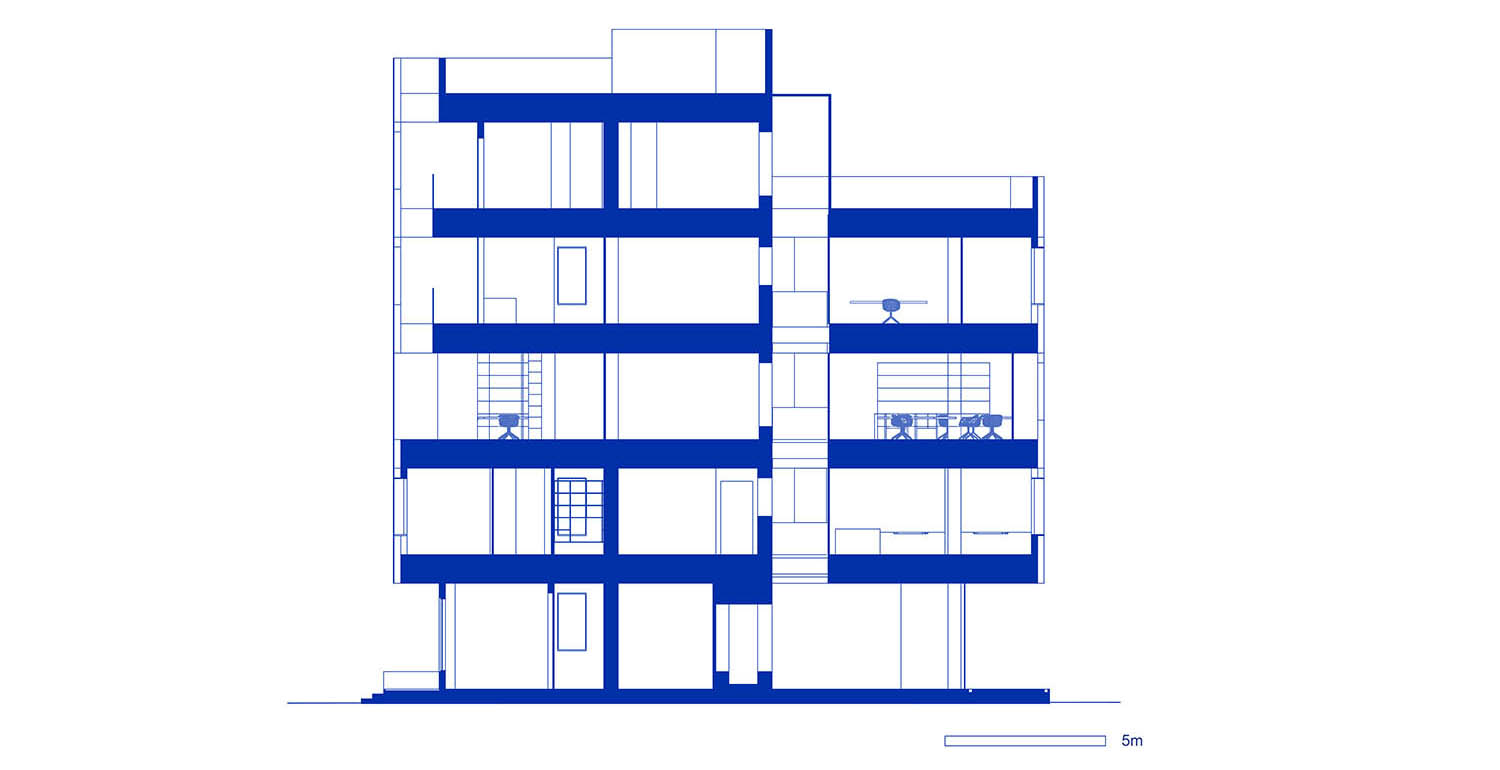
出于这样的考量,我们结合现有建筑条件,在设计之初提出了“立体编织”的概念。即在每层横向空间的基础上,将整栋建筑在纵向上一切为四。两侧实体为主要办公及会议空间,中间由采光天井这一虚体量自上而下由天光串联起各层空间,同时在天井的一侧设置了集合交通、卫生间等副功能的功能盒子。
Out of these considerations, we proposed the concept of “three-dimensional weaving” at the beginning of the design in combination with the existing building conditions. That is, on the basis of each horizontal space, the entire building is divided into four parts in the vertical direction. The physical bodies on both sides are spaces for office work and conferences. In the middle, a lighting atrium, the virtual body, connects the spaces of all floors from the top to the bottom via the skylight. Meanwhile, a function box integrated with sub functions such as traffic and toilet is set on one side of the atrium.

为了能够将无形的光线以可见的形态引入各层空间,功能盒子与虚体量(天井)连接的廊道我们使用了绿色玻璃作为扶手。绿色为甲方的品牌色,每天各个时间的光照都能够让这段颜色延伸至室内不同位置,地面与墙面大面积白色的运用也让这一效果显现得更为纯粹。
For able to introduce invisible light into the layers in a visible form, we used green glass as the armrest in the corridor where the function box is connected to the virtual body (atrium). Green is the brand color of the client. At different time of the day, the light can extend this color to different positions in the room. The use of large areas of white color on the floor and wall significantly highlights this effect.


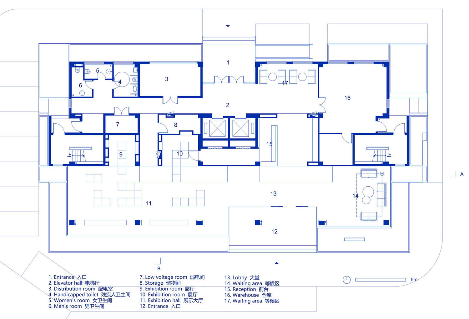
▲一层平面图 1F PLAN

▲二层平面图 2F PLAN

▲三层平面图 3F PLAN

▲四层平面图 4F PLAN

▲五层平面图 5F PLAN

▲南立面图 SOUTH ELEVATION

▲西立面图 WEST ELEVATION

▲剖面图A SECTION A

▲剖面图B SECTION B