
未来之丘办公楼项目位于广州市番禺区,临近广州南站,设计开始于广深港高铁通车前的四个月。它是园区内众多新建办公楼中的一栋五层高的样板楼,我们负责其中四个楼层的室内空间设计,即地下一层、地上一、四及五层。
PARKLIFE is located in Panyu District, Guangzhou, close to the Guangzhou South Railway Station. The design began four months before the opening of the Guangzhou-Shenzhen-Hongkong high-speed railway. It is a five-story model building among the many new office buildings in the zone. We are responsible for the interior design of four floors, namely the basement floor and the first, fourth and fifth floors above ground.
设计伊始,业主提出设计“具有未来感的新型办公空间”的要求。“何为未来感”,在与业主的沟通协调时,我们的想法渐趋一致。“未来感”,并非是科技的新与酷,而是空间的设计——空间触感的营造,生态与自由的气息。
At the beginning of the design, the owner proposed to design a “new office space with a sense of the future.”. But what is the sense of the future? When we communicated with the owners on this topic, our ideas became more and more consistent. The "Sense of the future" is not the novelty and cool of technology, but the design of space - the creation of spatial touch, the atmosphere of ecology and freedom.
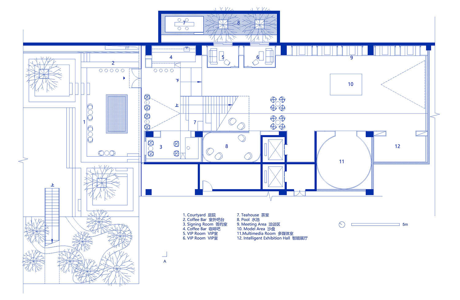
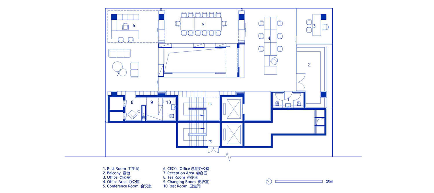
于是在空间设计上,尽量打破室内外空间的界限,内与外的空间景致相互流通。地下一层为洽谈展示空间,室外为下沉庭院。大面积玻璃的运用,将庭院景观引入室内。并将通向一层大堂的楼梯,设计成朝向庭院开敞的大楼梯,可停留、可休憩,可观赏与感受庭院的景致、光影的变化。而在四层和五层,则借鉴岭南建筑中的天井院落空间,设计一个贯通两层的屋顶采光中庭——天光从上流泻而下,洒在四层中庭的景观树上、满溢在空间中,使室内产生一种宛若室外庭院的错觉。
So in the space design, try to break the boundaries of indoor and outdoor spaces, and let the inner and outer space scenes communicate with each other. The basement floor is the space for discussion and the outdoors is a sunken courtyard. The use of large glass panels brings the courtyard landscape indoors. The staircase leading to the lobby is designed as a large staircase that opens to the courtyard, where you can stay, relax and enjoy the view of the courtyard and the changes in light and shadow. On the fourth and fifth floors, we designed a two-story roof lighting atrium going through the two stories with reference to the courtyard space from the Lingnan Architecture – the skylight flows down from the top, spreads over the landscape tree on the atrium of the fourth floor, and overflows in the space, creating an illusion that the interior is like an outdoor courtyard.
在材质的处理上,也主要选择偏向自然质感的木材和水磨石。四、五层的白色抹灰墙面和棕色木质的地板、窗框,与中庭的绿意,搭配得恰到好处,营造着舒适而惬意的办公氛围。地下一层与一层,主要为交流、展示空间,公共性较强,因此在墙面上大量使用阳极氧化铝板材质。表面模糊、抛光的阳极氧化铝材质,既可以营造出一种类似于镜面不锈钢材质的未来感,又没有那么冰冷,而是透着些许人性化的温润感。再加上木材的妆点,又增添了空间的温馨与自在。
In terms of materials processing, wood and terrazzo with natural texture are selected. The white plastered walls and brown wooden floors and window frames on the fourth and fifth floors are perfectly matched with the greenery of the atrium, creating a comfortable and cozy office atmosphere. The basement floor and the first floor are mainly spaces for communication and display and have a strong public nature. Therefore, a large number of anodized aluminum plate is used on the wall surfaces. The blurred and polished anodized aluminum materials on the surface can create a sense of the future similar to mirror finished stainless steel, however, it is not so cold as that, but a little humane warm feeling. In addition, the makeup of the wood provides the space with a warm and comfortable feeling.
在室内装置的设计中,我们与专业的画廊合作,根据设计概念而定制。在设计中,亦以生态、自然为主题,材料质感与室内空间材料相仿,烘托得室内空间设计整体、纯粹。
In the design of the indoor installations, we work with professional galleries and customize them based on the design concept. In the design, ecology and nature are again taken as the theme. The texture of the material is similar to that of the interior material, which makes the interior space overall and pure.

▲负一层平面图 -1F PLAN

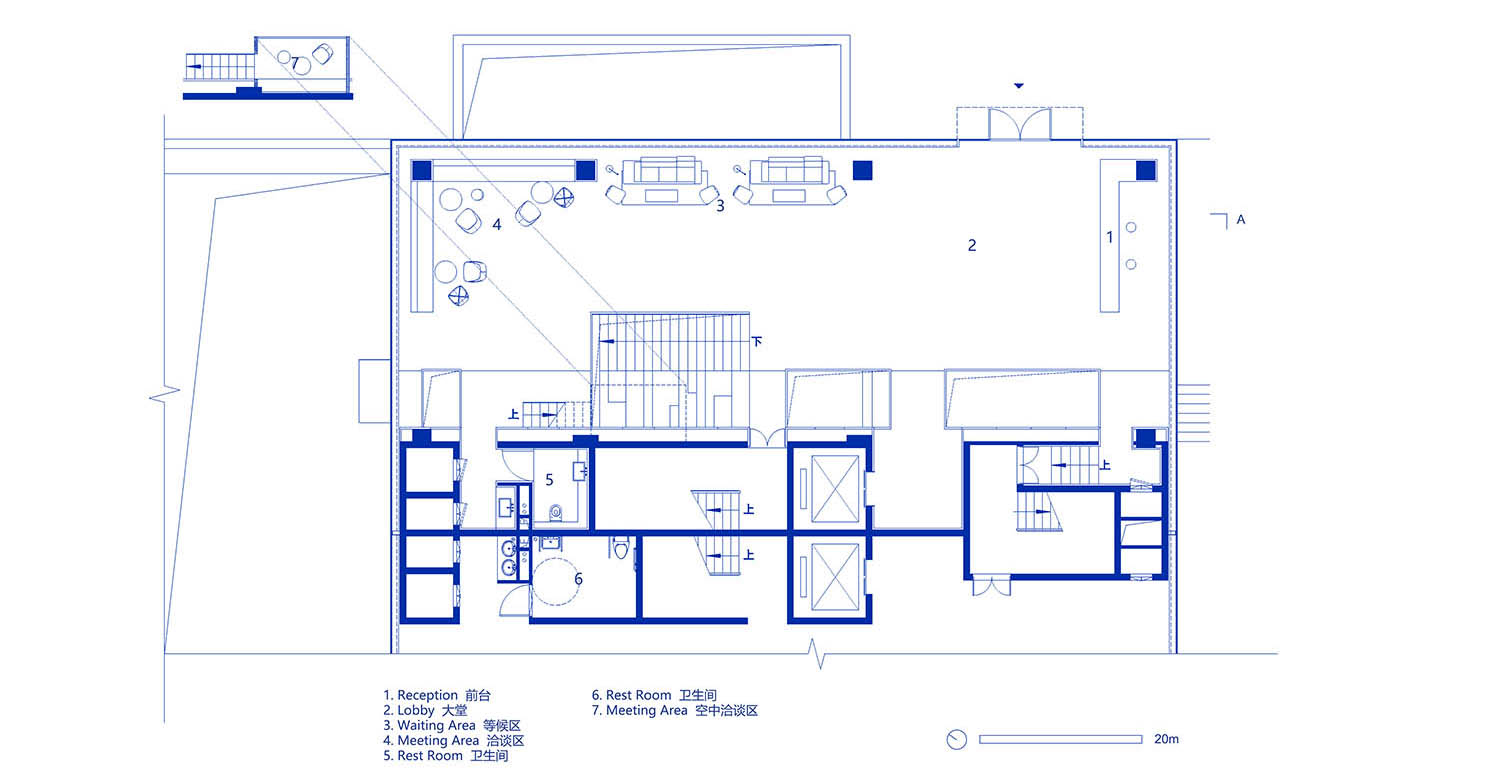
▲一层平面图 1F PLAN

▲四层平面图 4F PLAN

▲五层平面图 5F PLAN

▲剖面图A SECTION A