

从化社区中心位于广州市从化区,该项目正式投入使用之后将承载着附近居民如阅览、聚会等日常休闲活动。项目伊始,间筑设计(TEAM_BLDG)的建筑师认为该项目不应将建筑的内与外切割开来进行设计,而是将建筑与室内设计看作一个整体来打造一个可反映当地建筑特征、并与当地文化紧密相连的整体空间。以此为出发点,在对当地环境和项目特性进行仔细分析后,建筑师从当地传统民居围龙屋的概念及形态上汲取到了灵感。
The Community Centre is located in Conghua District, Guangzhou, Guangdong Province. After the project officially put into use, it will carry the daily leisure activities of nearby residents such as reading, gathering and so on. For this project Shanghai based architecture studio TEAM_BLDG works on both architecture and interior and gets inspired from the local architectural culture. A building deeply bonded with the territory which refers to the form and concept of the traditional local housing typology named Wei Long Wu (Hakka Dragon House).
围龙屋又名龙屋,属于客家建筑的分支,大多坐落于广东省,是一种常见的大型传统聚合住宅。围龙屋以夯土作高墙围合包围正屋,形成多个同心半圆体建筑群,并具有鲜明的功能划分。在设计过程中,建筑师对整个建筑运用了现代构图的方式,突破了传统对称的客家建筑特征,将多个同心半圆演化成多个相似三角形,构成了不对称的几何空间;巧妙的通过线与面的缓急对比加强了视觉上的层次感,以不同的设计手法,在保持建筑与外部交汇贯通的关系的同时,强化了建筑的纵深感。
“Wei Long Wu” (Round Dragon Housing), also named “Long Wu”, is a variation of Hakka architecture, mostly spread around Guangdong Province and is a common form of traditional clan housing. Wei Long Wu uses rammed earth as the outer wall to enclose inner housing which forms multiple concentric semi-circular structures, which have distinct functional zoning. In this project, the design adopts a contemporary composition to break the traditional Hakka architecture's layout. The geometric space is transformed from multiple concentric semicircles into similar triangles. The frames repetition, the plane and the overall scheme emphasizes the depth of field. The resulting configuration creates a visual sensation of layers while maintaining an open space.
建筑师尝试并成功用现代的理念、结构和材料来打造由封闭走向开放融合的客家建筑,创造出传统文化和现代观念相结合的建筑形态。
Architects attempted to create an architectural form integrating both traditional culture and modern values by employing contemporary theories, structures, materials and therefore the traditional Hakka architecture turning from reclusion to openness.
如同客家建筑大多坐落于山水树林间,这座双层建筑与周围自然景观也保持着亲密联系。剪影式的三角形顶棚如同山的影子般遮盖着地面;而支撑着整个三角屋顶的金属柱廊宛若茂密的树林,与户外的树木连成一片;环绕场地的水景弱化了由刚性的几何平面带来的疏离感,大面积的玻璃的应用,引入周围绿色景观,重新定义了建筑与周边的环境关系。庄重但不厚重的顶棚,高耸错落的柱廊,通透的落地玻璃,山与树与水。
As Hakka buildings are located in the nature, this double-story building has a close relationship to the surrounding environment: the silhouette of the triangular roof overshadows the ground like a mountain while the metal columns supporting the triangular roof connect with the outdoor trees like a forest. Waterscape around the site smoothens the strict geometries. Large areas of glazing and surrounding green space redefines the relationship between the building and the environment. Elegant roofs, clusters of poles, full height curtain walls: a poem of mountains, trees and water.
悬挑的顶棚引导游客进入建筑内部,映入眼帘的是错落分布着木质悬浮盒子的双层十米挑高空间。同时大面积的玻璃幕墙营造的通透感,使得无论哪个方位,都具有内外空间相通的视觉体验。隐藏在水池中的下沉休息区,悬挂在天花上的木隔栅,穿插在旋转楼梯和书架之间的休闲洽谈区,还有较为隐蔽私密的二层贵宾室,多个不同功能的空间仿佛彼此独立,却又浑然一体。
A generous canopy welcomes the visitors into the space, a 10m double height featuring suspended wooden boxes. The curtain wall guarantees the same transparent visual experience at all angles. Spaces with different functions are sophisticatedly arranged to be separated while keeping overall integrity: the sunken resting area, the wooden screen hanging from the ceiling, the meeting spaces in between stairs and bookshelves, the private VIP lounge on the second floor.
下沉式休息区由外部渗透进来的水体环绕包围,似客家建筑中的天井,收集储蓄疏通雨水,浅水镜面不仅倒映出光影的变化,也将窗外的枝繁叶茂引入室内,营造出人与自然融于一体的环境。
The sunken resting area is surrounded by water creating an analogy of the patio in Hakka architecture which collects and drains rainwater. The water not only reflects the variations of light and shadow, it also brings greenery into the space and builds up a harmonic environment integrating human and nature.
主要的休闲洽谈区域通过强调垂直上的纵深感和透明度,营造出一种平稳而开放的空间氛围。与洽谈区相邻的咖啡吧坐落于一个巨大的木质书架旁,书架随着木饰楼梯一直延伸至二层,继而连接起相对僻静私密的阅读空间。
The main meeting area creates a stable and open atmosphere by emphasizing depth and transparency of the space. Adjacent the lounge is located the coffee bar which is connected to the giant wooden bookcase descending from the upper floor where a more private reading area is located.
在直线构成的空间中,设计师巧妙地设置了一个旋转楼梯,经过钢结构精确的计算,运用了非柱支撑的结构连接于两层间。游客可以通过此旋转楼梯到达二楼的贵宾室和办公室,透过具有框景效果房间窗户向外望出,看到室内各部的同时亦可以观赏周边风景。
A spiral stair is finely designed in the rigid space. The staircase does not require columns thanks to the precise calculation of the steel structure. Visitors have access to the VIP lounge and the offices via this spiral staircase and enjoy the picturesque natural scenes framed by the windows.
为了适应当地气候,建筑师在南翼双层通高的开敞空间内设置了悬垂的木隔栅,可以达到舒适的遮阳效果,并且具有空间划分的功能。公共洽谈区,双层书架,咖啡吧就位于此。平行垂落且错落的木隔栅打破了安静的空间氛围,和室外的廊柱相互呼应的同时,密布的木隔栅也自身形成体量与二层的功能体块虚实相生。
To adapt to the local climate, suspended wooden screen in the double height space on the south side are designed to create shading while also contributing to zoning. Meeting spaces, bookshelves and the coffee bar are located here. This vertical waving screen enriches the static and quiet mood echoing the exterior poles while also forming a volume in relation to the functional areas on the second floor.
通过对建筑与室内整体考虑、通篇布局,传统的客家村落文化在现代的设计语言中再次被讲述出来,游走于整个建筑之中,让人体验到的是充满流动性的空间感受。
By approaching the design from both architectural and interior aspects, the integrity of the building is elegantly achieved. The traditional Hakka values are vividly embodied in a contemporary form. The delicate and delightful spaces continue to create unique experiences for visitors. The whole space experience is a continuum, the traditional Hakka village relives in a contemporary spirit with no boundaries.

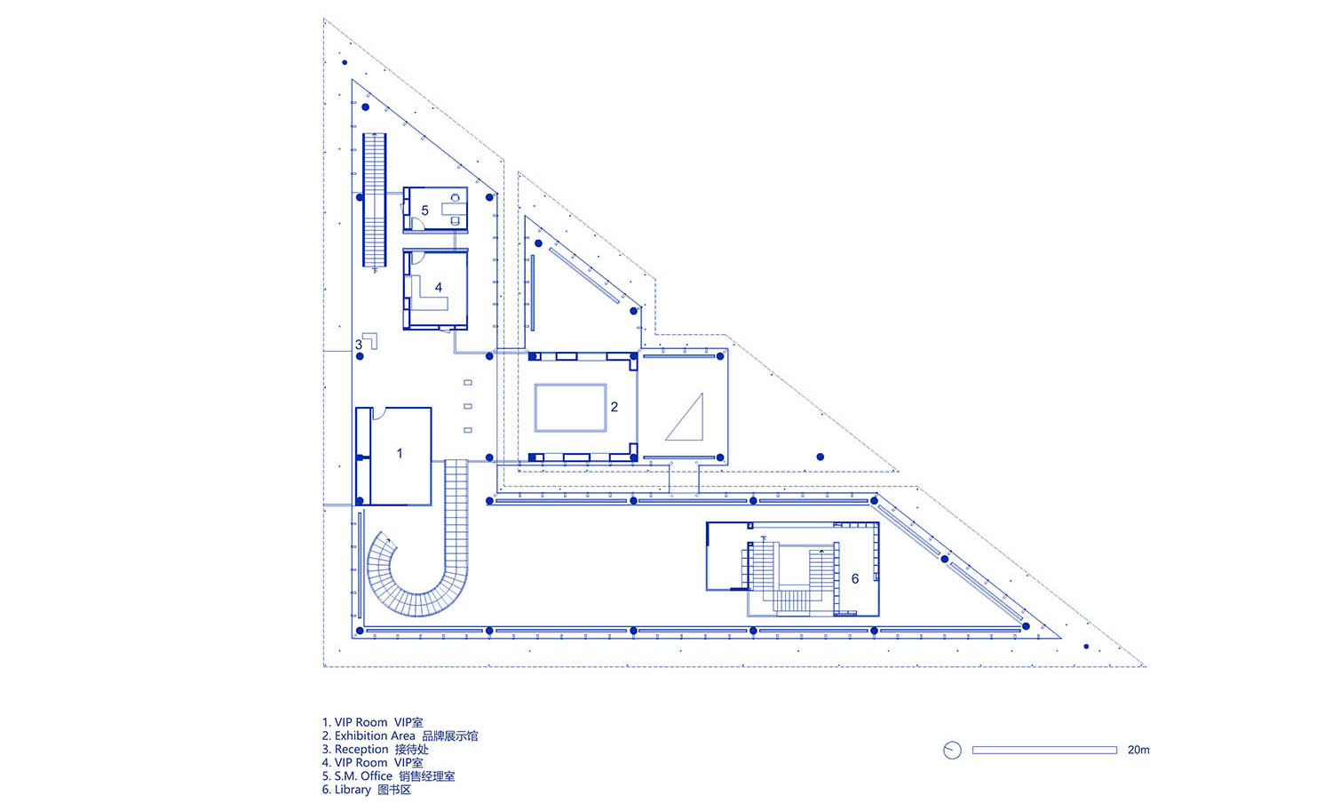
▲一层平面图 1F PLAN

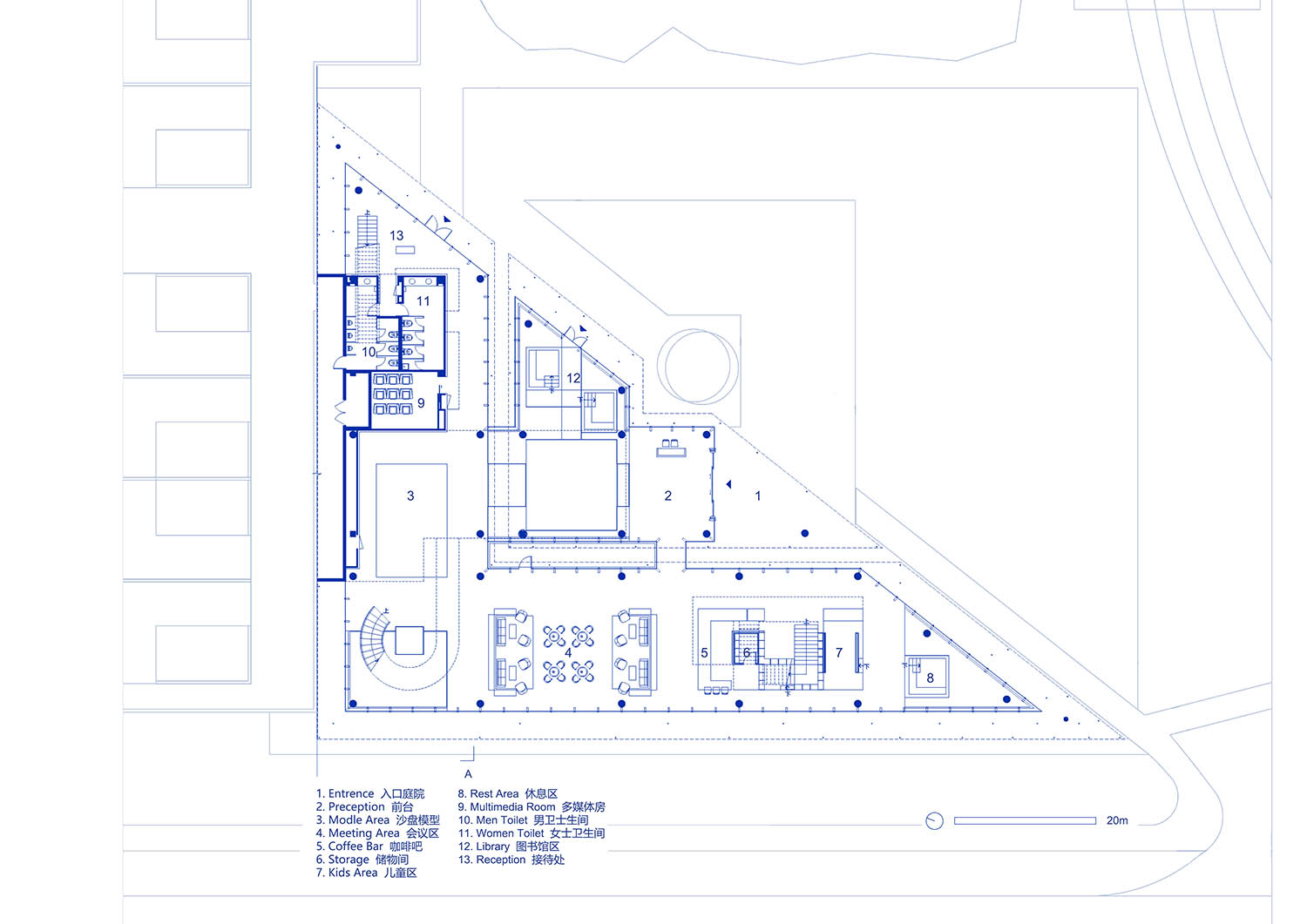
▲二层平面图 2F PLAN

▲东立面图 EAST ELEVATION

▲南立面图 SOUTH ELEVATION

▲剖面图A SECTION A