

道格·桑德斯曾在《Arrival City: The Final Migration and Our Next World》一书中指出落脚城市(也就是城中村)的发展是城市化进程中的关键一环,可能是下一波经济与文化的诞生地,也可能是下一波暴力冲突的爆发地,需要我们妥善处理。
In his book Arrival City: The Final Migration and Our Next World, Doug Saunders points out that the development of the arrival city (also known as urban village) is an important part in the urbanization process. It may be the birthplace of the next wave of economic and cultural development, or the explosive place of the next wave of violent conflicts, which needs to be properly handled.
广州是目前唯一仍有大量城中村存在于市中心的一线城市,截至2016年,据不完全统计,广州大大小小的城中村有304条,村域面积共716平方公里,居住人口近600万。正如我们此次改建项目所在的区域,因其优越的地理位置,每年仍有大量外来人口涌入,但他们栖身的居民楼大多残破老旧,居住环境亟待改善。而严重匮乏的资金和错综复杂的周边环境,则是修缮这些老公寓最大的障碍。此次改造我们不仅仅希望解决单个问题,更是希望能够探寻一种可复制的模板,给这种老旧城中村区域提供多一种可能性。
Guangzhou is the only first-tier city where a large number of urban villages still exist in the city center. As of 2016, according to incomplete statistics, there are 304 villages in Guangzhou, with a total area of 716 square kilometers and a population of nearly 6 million. Just like the area where our renovation project is located, due to its superior location, a large number of migrants still flow in every year. However, most of the residential buildings they live in are dilapidated, facing the urgent need to be improved its living environment. A severe lack of funds and intricate surroundings are the biggest obstacles to the renovation of these old apartments. In this architectural renovation, we hope not only to solve a single problem, but also to explore a reproducible template to provide an additional solution for this old urban village area.
喧闹城中村
Bustling urban village
作为广州市区面积最小、人口密度最高的中心城区,越秀区目前还存在着许多与高速城市化略显脱节的遗留地。而本次改造的项目便是位于越秀区寺右二马路上这样的一处知名的城中村。
As the central urban area with the smallest area and the highest population density in downtown Guangzhou, Yuexiu district still has a lot of urban villages, remnant areas slightly disjointed with the high-speed urbanization. The renovation project this time is located in a well-known urban village at the Siyou Second Road in Yuexiu District.
该城中村内的居民楼基本都是建于上世纪五六十年代的火柴盒式通廊住宅,为了满足实际使用的需要,建筑立面及内部存在不少加建和搭建。绝佳的市中心地理位置,吸引大量的年轻上班族聚居于此,他们享受住在此地的便利交通,同时也想要追求舒适性和设计感,迫切地想要改善居住环境。
The residential buildings in the urban village are basically the matchbox type corridor houses built in the 1950s and 1960s. In order to meet the actual use needs, there are many additions and structures at the façade and inside of the building. With its excellent downtown location and convenient transportation environment, this area is populated by a large number of young office workers. While enjoying living in the city center, they also want to pursue comfort and design, so that they are eager to improve the living environment.
本次改造的居民楼周边颇为繁杂特殊,前面是一条车水马龙的城市干道,后面则是城中村内唯一的市场——寺右肉菜市场,生活所需的饮食、杂货、五金等商铺林立于此,与其相邻的还有另外两栋内部构造极为相似的居民楼。繁忙喧闹的城中村特有肌理是我们刚到达基地时的第一印象。
The residential building to be renovated this time is located at a very special position, with a bustling urban trunk road in front and the Siyou meat and vegetable market, the only market in the urban village. The stores necessary for life, such as food, groceries and hardware, stand in the market. Nearby, there are two other residential buildings with very similar interior structure. The unique texture of the bustling and noisy urban village was our first impression when we just arrived at the base.
业主希望我们通过对外立面的改造,能够摆脱原本陈旧脏乱的城中村印象,树立长租公寓品牌的标杆形象,同时希望对内部空间的提升,使公寓既能满足居住舒适性,又能利用公共空间开展活动,增进邻里互动。
The owner hopes that through the transformation of the facade, we can get rid of the old and dirty impression of the urban village and establish the benchmark image of the long-rented apartment brand. Meanwhile, it is hoped to improve the internal space, so that the apartment will not only meet the living comfort, but also make use of the public space to carry out activities and enhance neighborhood interaction.
“减重”立面新语
“Lose weight” of new language of facade
该建筑作为连接城市与城中村的门脸,改造后的立面如何既增加与城市相衔接的融合度、又维持与所处社区的粘合性是本次立面改造的重点诉求之一。
As the front connecting the city with the urban village, how the transformed facade increases the degree of integration to link with the city and maintain cohesion with the community is one of the key demands for the facade reconstruction.
我们对立面上铝板冲孔的方式和比例关系进行了研究和沟通,经过反复打样确认后,选择了波浪型的冲孔铝板,从中庭两端包裹延伸至外部的立面。冲孔的样式力求与原建筑立面的拼接马赛克相呼应,通过半透样式的覆盖层和灯光设置为整座建筑“减重”,以轻盈的“节奏”和跳跃性的体块分割迎接房间外的车水马龙。
We studied and communicated about the punching method and proportion of the aluminum plate on the facade. After repeated proofing and confirmation, we chose the wavy punching aluminum plate to wrap the façade extending from the two ends of the atrium to the exterior. We strived to echo the punching pattern with the splicing mosaic of original building facade, to "reduce the weight" of the entire building through the semi-transparent covering layer and lighting setting, and meet the heavy traffic outside the house by the lightsome "rhythm" and jumping volume division.
而背后与城中村内原有建筑的“对话”也突出了新与旧语言的对比,与周边大小建筑共生的状态强调了城市立面肌理层次的“拼贴”感。
The "dialogue" with the original buildings in the urban village behind also highlighted the contrast between the new and old languages, and the symbiosis with the surrounding buildings of big and small sizes emphasized the sense of "collage" of the texture level of the city facade.
通廊“切割”公共与私密
Corridor “cuts” public and private secrets
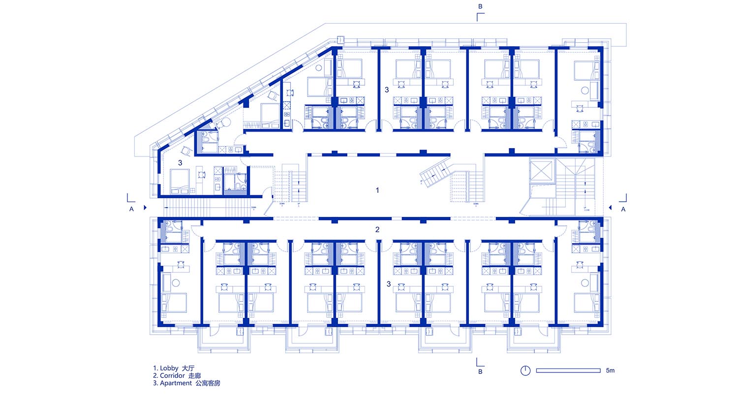
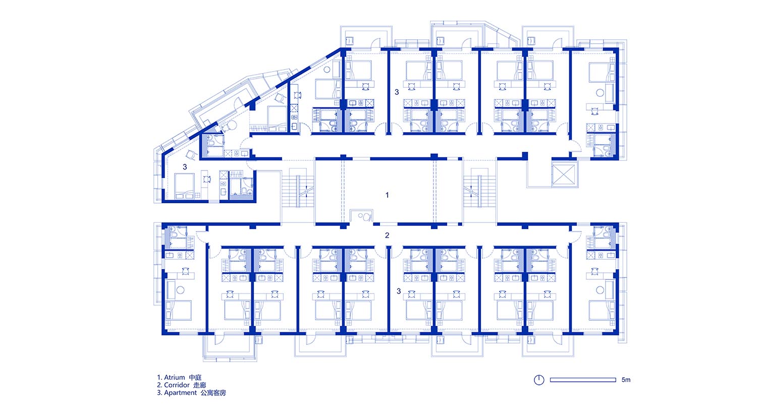
建筑的内部充分利用场地做出了错层通廊,通廊东西两头由两部楼梯相连,满足了当时村内小户型聚居的功能需求;但南北住户围合成的内院存在大量搭建,空调外机、电线烟囱错落,使原本楼内唯一较开敞的公共空间异常脏乱,院内甚至还存在较严重的鼠患。
The site is made full use in the interior of the building to make the staggered-floor corridor, and the east and west end of the corridor are connected with two staircases, which met the functional needs of small family settlement in the village at that time. However, there are a large number of structures in the inner courtyard surrounded by residents from the north and south and the air conditioning machines and wire chimneys that are scattered at random, which makes the only open public space in the original building unusually dirty and disorderly and there is even serious rat infestation in the courtyard.
因此建筑内部改建的重心放在了院内的公共空间部分,同时重新划分房型的合理性也是我们着重下功夫的设计点。
Therefore, the main part of the internal reconstruction of the building should be the public space part in the yard and the rationale for re-dividing the house type is also the design point that we should focus on.
本次设计首先从中庭入手,清理院内的原有搭建,并整理空调和各类线管,以保证庭院的开敞度和舒适性。因地制宜,充分利用原建筑主要立体动线围合成的公共空间,通过视觉上内立面的趣味性营造,保证新住户在中庭及错层通廊的驻留度。
The design starts with the central courtyard to clean the original structures in the yard and sort out the air conditioning and various lines and pipes to ensure the courtyard's openness and comfort. According to local conditions, the public space surrounded by the main three-dimensional dynamic lines of the original building should be made full use of, to ensure that the lingering degree of the new residents in the central yard and staggered floor corridor by creating an interesting visual interior facade.
设计尽可能地保留了建筑中的原有结构,并且保留原建筑中以各层不同户型相连、房间面前的错层通廊和楼梯立体围合、汇聚在中心庭院这三重从私密到公共的空间层次。沿街裙房与住户之间的夹层填充健身房、视听室等公共活动空间,顶层露台设置观景、晾晒等休闲区域。同时在入口处增设了可以便利到达各楼层的观光电梯。
The design should keep the original structure of the building as much as possible and retain the three spatial levels from the private to the public areas in the original buildings, namely the connection of different house types at each floor, the three-dimensional enclosure of the staggered floor corridor and the staircase in front of houses, and convergence at the central courtyard. The interlayer between the skirt buildings along the street and the residents is filled with the gym, audio-visual rooms and other public spaces and the top terrace is set with sightseeing, drying and other recreational areas. At the entrance, the sightseeing elevator is added to reach each floor conveniently.
难点与不足
Difficulties and shortcomings
改造过程中原建筑因为年久失修和管线混乱,建筑内部上下水埋管和新的消防管线设置成了改造中最大的难题,而城中村的管线设置如何与现有市政管道连接也经过多方努力协商才合理解决。
In the process of renovation, due to not repairing for longer time and disorderly pipeline, the setting of the upper and lower water buried pipes and the new firefighting pipeline inside the building became the biggest problem in the renovation. However, how to connect the pipeline setting in the urban village with the existing municipal pipeline was also reasonably solved through multi-party efforts and consultations.
材料方面,为了满足低成本和高效率的设计要求,我们尽可能选择了成品装配式洗手间和可预制的建筑材料,例如水磨石地砖、干挂金属板材等。
In terms of materials, in order to meet the design requirements of high efficiency and low cost which is only 150 to 180 US dollars per square meter, we have chosen finished fabricated toilets and prefabricated building materials as much as possible, such as terrazzo floor tiles and dry hanging metal sheets.
不过遗憾的是因时间和预算的限制,外立面入口处及公共空间的材质和细节处理有些仓促,近人尺度处的材质应该更加平易近人,扶手的细节应处理的更好以满足实际功能需求。
Regrettably, due to the limitation of time and budget, the materials and details for the entrance of the facade and the public space were handled in a hurry. The materials for the man approachable dimension should be more approachable, and the detail processing for the handrails should better meet the actual functional requirements.

▲二层平面图 2F PLAN

▲标准层平面图3F-9F STANDARD FLOOR PLAN 3F-9F

▲北立面图 NORTH ELEVATION

▲东立面图 EAST ELEVATION

▲A-A剖面图 SECTION A-A

▲B-B剖面图 SECTION B-B