

2021年夏天,TEAM_BLDG间筑设计接到了来自杭州市青山村的项目委托,将已经废置数年的龙坞泉水厂改造成为青山青年社——容纳"住宿、办公、展览、商店"等功能,为去到青山村进行短期休假式办公、驻村创业,度假的人们提供一处"共享居住&共享办公(Co-Living& Co-Working)"的建筑。此次改造不仅仅希望解决旧建筑的现有问题,更是希望通过空间加深人与人,人与村庄之间的紧密关系,使新老村民都可以参与其中,分享这座建筑。
In the summer of 2021, Qingshan Village, which is located in Hangzhou City, commissioned TEAM_BLDG to complete the reconstruction of the long-vacant Longwu Spring Water Plant into Qingshan Co-space, which can accommodate "residence, office, exhibition, shops," and other functions. This project intends to construct a "Co-Living & Co-Working" building with areas that accommodate start-up businesses and temporary vacation-style jobs in the village. In addition on attempting to address the building's current issues, this reconstruction project aims to strengthen the bond between residents and residents with the village by creating a shared place in which both the existing and new villagers may engage and share among each other.
到这里来,停下来
Come And Halt
青山村所处的杭州余杭区,乡村经济实力雄厚,相对传统民居,富裕的当地村民更倾向于住在崭新的自建别墅中。鲜有的几幢老房子,也几乎皆被近年来此的新村民所修缮、使用。
The Yuhang District of Hangzhou, where Qingshan Village is located, has strong rural economy background. Compared with traditional houses, wealthy local villagers prefer to live in brand-new self-built villas. Almost all of the few old houses have been renovated and used by the new villagers who have relocated here in recent years.
虽然村内已几乎看不到传统乡村建筑,但依水而聚的自然村落肌理却被很好的保留了下来。沿着水系逆流而上,几个自然聚落的农田、房屋交替经过,遂见竹林掩映、道路渐窄。行至山腹处是村内最为重要的水源地:龙坞水库,而水库前的最后几栋建筑便是青年社的项目基地。
Although there are almost no traditional buildings left in the village, the natural village texture formed according to the water has been well preserved. As you go upstream along the river, you will pass by farmland and houses in several natural settlements alternately, and you will see bamboo forests and narrow roads. Walking to the center of the mountain is the most important water source in the village: Longwu Reservoir, and the last few buildings in front of the reservoir is the site of this project.
设计初始的几次到访中,建筑师发现由于后续通往水库的道路狭窄且坡陡,使得无论人们乘何种交通工具至此,到了基地前多数都会停车转为徒步继续前行。这种“停下来”的感受非常强烈,也给了后续的设计一些想法——如果将村子看做一栋住宅,青年社则像是其中的书房或卧室,白天惬意、夜晚静谧。
During the visits in the beginning of design stage, the architect found that no matter what kind of transportation people took to get there, most people would stop before arriving at the site and shift to walking due to the narrow and steep slope of the road leading to the reservoir. This strong sense of "stopping" provides some ideas for the later design. If the village is thought of as a house, the Co.space is like a study or bedroom, pleasant during the day and quiet at night.
建筑-融入环境还是融入习惯
Architecture-Blending Into The Environment Or Into Habits
项目原始建筑为一栋三层半框架建筑,一栋双坡屋顶房以及少量单层附属裙房。围合状的各厂房之间相互连通,并有着从东向西递减的屋顶高度,这种空间关系原本是为了满足水厂的生产与运输动线,也与周边形成地势一致。基地南侧紧邻一座生物多样性山体,自然景观扑面而来;北侧的溪水在丰沛期汩汩而下。业主给出的设计任务并不复杂,在满足空间的各种功能之外,仅有两个诉求:希望融于环境,希望是“真实的空间”。
The project's initial structure is a three-story half-frame building with an attached double-sloped roof chamber and a few single-story podiums. The enclosed factory buildings are connected to each other and have roof heights that decrease from east to west. Originally, this spatial arrangement was meant to accommodate the water plant's production and transportation lines while also being in keeping with the topography in the area. The site's north side has a creek that gurgles during the time of abundance, and its south side is near to a mountain with a varied range of biological species. The owner has assigned a simple design challenge. There are just two requirements in addition to fulfilling the space's numerous functions: the desire to blend in with the surroundings and the desire to create "real space".
原本三层主建筑为红色瓷砖外墙,其余几栋为白色涂料,旧建筑并未与自然很好地衔接,甚至几栋建筑之间都存在着对立感。若想改造后的建筑融于环境,可以通过更换外立面材质和颜色来实现,但这样的表达过于直白,甚至有些无趣。由此我们想到了甲方提出的"真实的空间"这个要求,所谓融入是否也可以是由使用习惯为核心来形成呢?
Originally, the three-story main building had red exterior wall tiles , and the remaining buildings were painted in white. The older structures had poor connections to nature, and there even seemed to be a sense of conflict between some of them. Changing the facade's material and color can help a refurbished structure blend in with its surroundings, but this solution is too simple and uninteresting. From this, we conceptualized the "real space" the client had mentioned. Can the so-called integration be formed based on usage habits?
梯田
Terraced Farmland
原本厂房的功能是"加工",但村子的属性更多为"种植"。设计首先保留了厂房之间的连通状态,把裙房原有的5个空间单元增至7个,整体形成了0.75米退级的"回"字型台阶式屋顶。层层退台的"梯田"形态是为了关照到建筑所在的坡地,同时也丰富了户外空间与动线。其次,设计在裙房屋顶上划分出约若干种植区和休息区,铺出两条1.2米宽的走道穿插其中,长期住客可在此种植蔬菜、香草等简单作物。而主楼屋面则用六十余个高1米的可移动植物架,围合出多组休闲空间。屋顶的不同层级为人们增添了多变的视野,高低错落的第五立面与周围环境相互映衬,建筑与地形、自然的关系变得更为密切。
The factory's original purpose was "processing", but the attribute of the village was more of "planting". The design originally kept the factories connected, then enlarged the podium's original five spatial units to seven, creating a 0.75-meter stepped roof with a "回" shape. The "terraced" shape of the terraces is intended to compensate for the building's location on a hill while also enhancing the outdoor area and circulation. Second, the design divides a number of planting areas and rest areas on the roof of the podium, and lays out two 1.2-meter-wide walkways running through them. Long-term residents can grow vegetables, herbs and other simple crops here. On the roof of the main building, more than sixty 1-meter-high movable plant racks are used to enclose multiple groups of leisure spaces. The different levels of the roof add to the versatility of the view. The fifth façade, with its staggered heights, reflects the surrounding environment, and the relationship between architecture and topography and nature becomes closer.
温室
Greenhouse
城市中的很多室内空间,会将光线和温度设定为恒定值,人在其中,很难感知到一天中自然因素的变化。而在青山村,即便拥有现代化的公共设施,村民的日常行为还是更依赖于自然光,例如即便村内道路照明齐全,日落之后也很少见到人们在户外走动。基于这些习惯,我们想要将更多的自然光线引入建筑中,增加空间中的"变量"。
Many indoor spaces in cities have light and temperature set at constant values, making it difficult for people to perceive changes in natural factors throughout the day. In Qingshan Village, even with modern public facilities, villagers still rely more on natural light for their daily activities. For example, even if the roads in the village are well-lit, people are rarely seen walking outdoors after dusk. Based on these habits, we wish to improve the "variability" of the area and provide more natural light to the building.
业主希望在主楼中放置一个以"水"为主题的展览空间,且其中的展品形式是多元的。受周边环境启发,我们以植物来表达水这个概念。设计将双坡屋顶房进行等比缩放后"生长"入主楼,筑出一间高约7米的温室,贯通三层,容纳植物并作为展厅。充足的自然光透过天窗照射至阳光板构筑的温室上,形成折射与散射,在一天当中呈现不同的色调与氛围,保证了植物耐活性的同时,也使温室作为整个项目的"内核"更为通透醒目。同时,设计将主楼西侧立面解构为11个单元,以温室为焦点形成向内层叠延伸的墙面构成,看似被"温室"的生长动势所挤压,也呼应了整体建筑的"梯田"形态。
The client hopes to place an exhibition space with the theme of "water" in the main building, and the exhibits in it will be diverse. Inspired by the surrounding environment, we take advantage of plants to represent the idea of water. The design scales the double-slope roof house proportionally and "grows" it into the main building, creating a greenhouse about 7 meters high that runs through three floors to accommodate plants and serve as an exhibition hall. Sufficient natural light penetrates through the skylight onto the greenhouse constructed of polycarbonate sheets, causing refraction and dispersion, which creates a variety of tones and atmospheres throughout the day. This ensures that the plants are resistant to activity and also makes the greenhouse as the "core" of the entire project more attractive and transparent. At the same time, the design deconstructs the west facade of the main building into 11 units, with the greenhouse as the focus to form a wall composition that cascades and extends inward. It seems to be squeezed by the growth momentum of the "greenhouse", echoing the overall "terraced" form of the building.
一层作为共享办公空间,东西两侧尽量多的以玻璃幕墙代替原有墙体,局部可开启对流、通风,营造室内外联通的空间氛围,同时让更多的光影变化在这个空间发生。二、三层则通过打开南侧的墙体与顶面,在客房走廊的尽头营造了两处贴近自然的休闲空间。
The first floor serves as a shared office space, it provides as many glass curtain walls as possible on the east and west sides to replace the original walls. More variations in light and shadow may take place in this area, and convection and ventilation are able to produce a spatial environment that connects the inside and the outside. On the second and third floors, two leisure spaces close to nature are created at the end of the guest room corridor by opening the wall and ceiling on the south side.
室内-行为引导空间
Interior-Behavioral Guidance Space
在这个面积两千平米,却承载了多种功能的场所中,如果将进入建筑的人群按目的分类,可能会有:办公、就餐、参观、集会、烹饪、工作坊、长租、短住等若干种。通过空间划分和动线归置也许可以让几股人流尽量互不打扰,但却一定程度上破坏了这个随机社群的共有性,违背了"真实的空间"的设计初衷。
In this place with an area of 2,000 square meters, it carries a variety of functions. If the people entering the building are classified by purpose, they may include: office, dining, visiting, gathering, cooking, workshop, long-term rental, short-term stay, and etc. Through spatial division and placement of circulation flows, it may be possible to prevent several flows of people from disturbing each other, but to a certain extent, it destroys the commonality of this random community and violates the original design intention of "real space".
我们将人群按照对私密性的要求等级进行了排列,除等级最高的主楼二、三层23间客房外,各公共空间都相应给予了一定的自由度。如主楼一层,既有刷卡进入的共享办公区,也有对外开放的展厅阅览区,但两个空间视线上却是联通的,仅以绿植做阻隔。而整个共享办公区,除两间会议室之外,皆为开敞的连续空间,只通过地面的抬高与下沉划分场地,且对每个区域的具体功能不做约束,使用者甚至可以自行改变格局。
With the exception of the 23 guest rooms on the second and third floors of the main building, which are the highest level, we organize the users according to the level of privacy needs, and all public places are allowed a certain amount of freedom in accordance. For instance, the main building's first floor houses a public exhibition hall and reading room in addition to a shared office space that is accessible via card swipe. The only thing separating the two sections visually is a wall of greenery. With the exception of the two conference rooms, the common office space is an open, continuous area. The site is simply separated by the rising and lowering of the ground. There are no constraints on the precise functions of each region, so the users can alter the layout on their own.
在这样自由的公共环境中,当然也需要一定的私密性,设计通过在几条动线中添加半围合区域,来实现一些"驿站"式的独处空间。
Of course, some privacy is also necessary in such a liberated public setting. The design adds semi-enclosed rooms to a number of moving lines to offer some solitary places in "station" style.
值得一提的是,为了确保这样的自由空间不会为使用带来困扰,间筑也包揽了项目中所有的标识与导视设计。
It's important to note that TEAM_BLDG also handled the project's signage and guide design in order to guarantee that a vacant area won't pose problems for use.
内院-树木聚人群
Courtyard-Trees Gather People
青年社的内院是设计师将权力交还给使用者的部分,虽然建筑师在前期也进行了几种平面排布与推敲,但在这样的环境下总觉得有种"强加于人"的刻意,于是只保留了树木与水池。
The Co.space's inner courtyard is where the designer gives people back control of the area. Only the trees and ponds were kept, despite the fact that the architect had made various layout arrangements and considerations in the early stages since they always felt like an intentional "imposition" in such a setting.
按照在村里生活了六七年的新村民的说法,在这里"有大树就可以聚拢人群,其他倒是次要的"。最终,建筑师选定了三棵枝条宽大,主杆分叉偏高的乌桕树。乌桕在5-7月开花,高大的树冠洒下一片荫凉,草木凋零繁茂之间,见得四季变化。另一方面,庭院水池是双坡屋顶房在户外的延伸,二者在空间上是垂直关系。水池高约20公分,青石覆底,水纹波动时,使方正的庭院有了空间上的灵动。那么很自然地,这里就是一个露天的舞台,是人与人交流,碰面的院子。
According to a new villager who has lived in the village for six to seven years, "big trees can gather people here, and everything else is secondary." In the end, the architect chose to plant three sapiums with wide branches and high fork points of the main pole. From May through July, the sapiums bloom, and the thick canopy provides shade. The vegetation is lush and withered, symbolizing the four seasons. On the other hand, the courtyard pool is an outdoor extension of the double-slope roof house, and the two have a vertical relationship in space. The pool is about 20 centimeters high, with bluestone covering the bottom. When the water ripples fluctuate, it gives the square courtyard a spatial agility. So naturally, this is an open-air stage, a courtyard where people communicate and meet.
建造-多留点力气给后半程
Construction-Save More Energy For The Second Half Of The Process
在乡村造房子有着与城市中截然不同的方式方法。因施工水平和设计认知上的差异,建筑师的身份更像是工匠,相较于设计,施工阶段会耗费数倍的精力,必须亲历从上到下的各个细枝末节。
Building a house in the countryside is completely different from that in the city. Architects are more like craftsmen due to differences in construction level and design cognition. The building phase requires more energy than the design phase since every aspect must be directly experienced from top to bottom.
青年社在采用低技术、低成本建造策略的同时,依然需要设计师一同花费数月时间进行80多次材料打样。我们也在此过程中意识到了很多传统乡村建造手艺正在逐步退化、失传,例如七八十年代乡村建筑外立面常用的水洗石,在这里已很难找到技术熟练工。而将外墙材质改为黄沙石灰后,仍无法解决施工技术上的问题,最终只能选用不那么"乡村"的肌理涂料。外墙施工过程中,建筑师提高了驻场频率,同时跟过往项目里有类似经验的施工方进行沟通,从而协助工人师傅对涂料的色彩、肌理,厚度进行反复现场测试,制造出了一些与环境更相融的粗粝和不均质的手工痕迹,色彩也更趋向本地的山地红土。
Co.space uses low-tech and low-cost building methods, yet it still requires designers to work for many months on more than 80 mock ups. Throughout this process, we also became aware of the progressive degradation and disappearance of several traditional rural construction methods. For example, the washed stone commonly used on rural building facades in the 1970s and 1980s has made it difficult to find skilled labors here. Even after switching to yellow sand lime for the outer walls, the technical issues with the building were remained unresolved. In the end, we had to choose a less "rural" texture paint. During the construction of the exterior wall, the architect increased the frequency of on-site visits and communicated with construction parties who had similar experience in past projects. This helped the master workers conduct repeated on-site tests on the color, texture, and thickness of the paint, creating some rough and uneven handcrafted traces that are more compatible with the environment, and the color is more similar to the local mountain red soil.
尽管如此,设计上还是尽可能的摒弃工业化、标准化的成品,多一些定制和现场制作的物件,同时,间筑还专为本项目设计了两款胶合板家具,并改良重产了原建筑内的一款工厂吊灯。而对于现场的施工错误,相对于严格的完全返工,更多的是通过调整局部,使其合理。
Despite this, the design made a conscious decision to avoid using standardized and industrially produced finished goods as much as possible and instead employed more unique and locally manufactured products. At the same time, TEAM_BLDG created two pieces of plywood furniture specifically for this project, and a modified and reproduced factory chandelier from the original building was installed. For on-site construction errors, rather than strict complete rework, it is more about making partial adjustments to make them reasonable.


▲模型 MODEL

▲设计阶段材料研究 MATERIAL RESEARCH OF DESIGN PERIOD

▲施工阶段肌理涂料打样 TEXTURE COATING PROOFING OF CONSTRUCTION PERIOD

▲一层平面图 1F PLAN

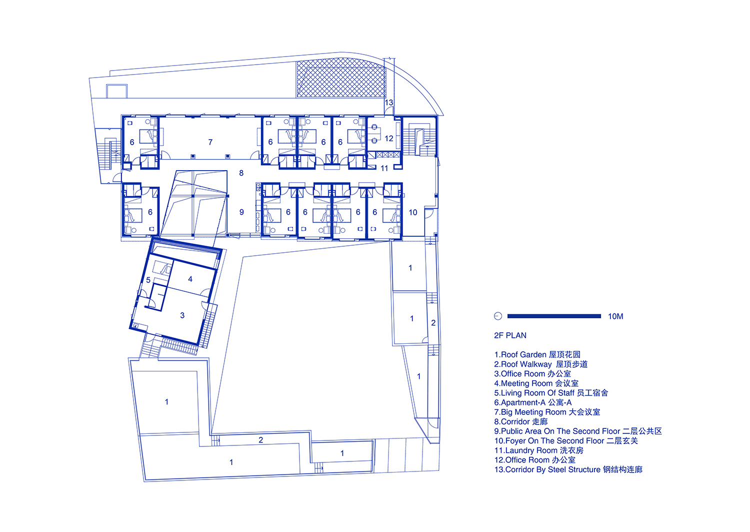
▲二层平面图 2F PLAN

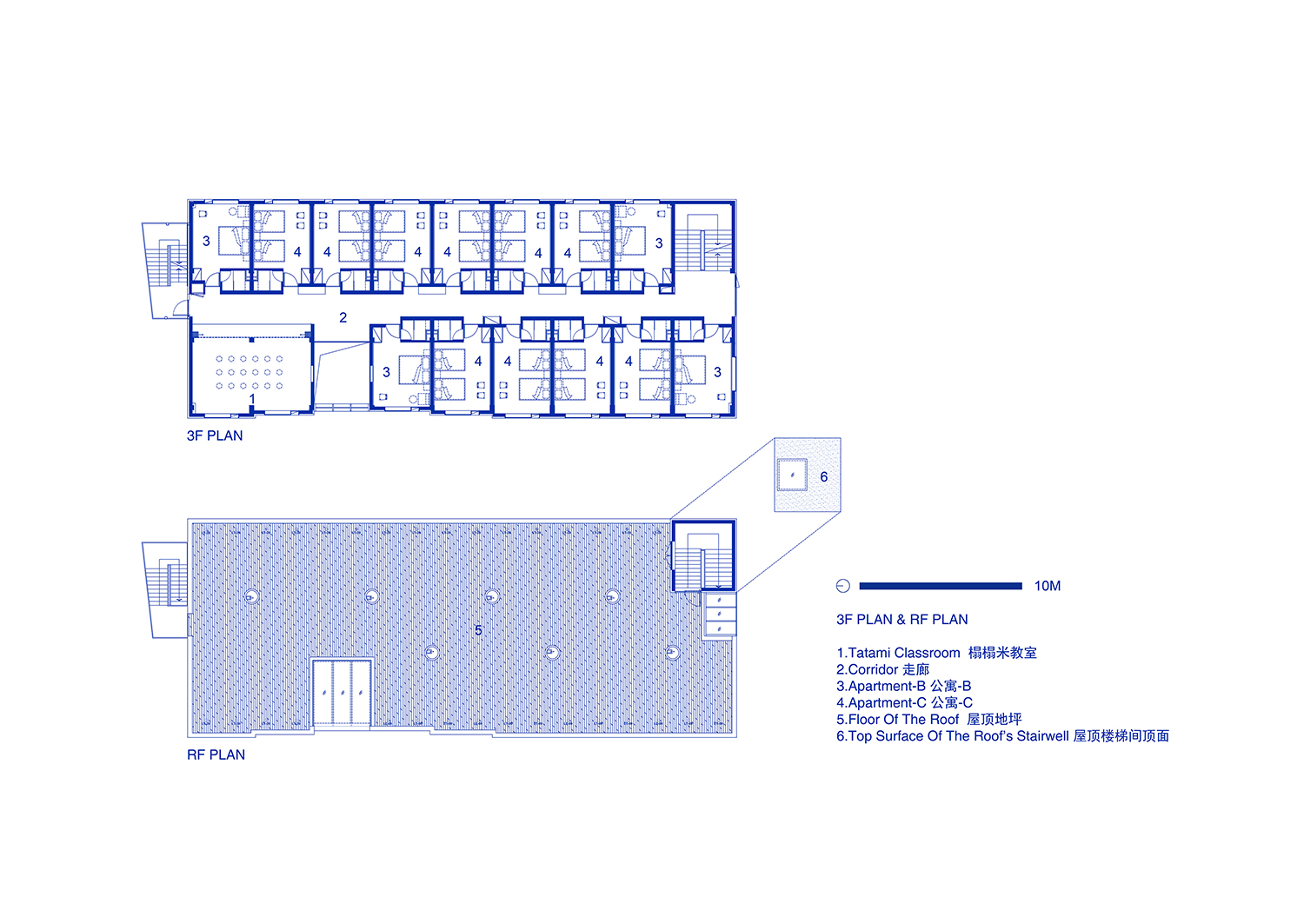
▲三层&屋顶平面图 3F&ROOF PLAN

▲北立面图 NORTH ELEVATION

▲南立面图 SOUTH ELEVATION

▲西立面图 WEST ELEVATION

▲主楼西立面图 WEST ELEVATION OF MAIN BUILDING

▲主楼剖面图 SECTION OF MAIN BUILDING

▲概念分析图 CONCEPT DIAGRAM