
浙江松阳县松庄村海拔四百多米,位居山中,弯多路窄,初次到达,俨然经历了现代版的《桃花源记》。据说这里在2017年前,是个大多数松阳人自己都没去过、甚至不知道的村庄。也因此,松庄的老房子和村落肌理的原始风貌都几乎完整的保留了下来。
Located in Songzhuang Village, Songyang County, Zhejiang Province, the Z Museum sits over 400 meters above sea level, nestled deep within the mountains. With its winding roads and narrow paths, arriving here for the first time feels like stepping into a modern-day version of the “Peach Blossom Spring”. It is said that prior to 2017, this was a place even most locals of Songyang had never visited—or even heard of. As a result, the village has managed to preserve much of its original character, including its traditional housing and historical spatial fabric.
2024年初,TEAM_BLDG间筑设计接到了来自这座600年古村落的项目之邀,将松庄村中的一幢九十年代砖混民房改造成为「Z MUSEUM织美术馆」——— 国内首座以编织为主题的当代乡村美术馆。
In early 2024, TEAM_BLDG was invited to undertake a project in this 600-year-old village: to transform a brick-and-concrete residential house built in the 1990s into Z MUSEUM – the first contemporary rural art museum in China dedicated to the theme of weaving.
与其隐,不如锐
Better to Stand Out than to Disappear
村中显著位置,原建筑兀自伫立,其尺度与材质都明显与周边低矮连绵的夯土老房子格格不入。该民房中已无人居住,乡内也曾多次想要对其进行改造,直至现在的运营方“山风大美”提出了建造织美术馆的想法。
The original architecture stands in a prominent location within the village—its scale and material starkly contrast with the surrounding low, continuous rows of traditional rammed-earth houses. Having long been uninhabited, the building had been considered for renovation on multiple occasions. It wasn’t until the current operator, Mountain Creations, proposed transforming it into the Z Museum that a clear vision began to take shape.
初次接洽,运营方就对间筑提出了清晰的设计诉求:格格不入既然已成事实,与其消减隐藏,不如以更有记忆点的方式增加这种对比。同时,希望“这种对比”之于美术馆、之于村庄又是恰如其分且优美的。
From the outset, the operator conveyed a definitive design direction to TEAM_BLDG: since the building’s incongruity with the village context was an established fact, instead of concealing or diminishing it, why not enhance this contrast in a way that is memorable? At the same time, this contrast should be appropriate and graceful—resonating both with the spirit of an art museum and with the character of the village itself.
四重奏与变色表皮
A Quartet and a Color-Shifting Skin
面对原建筑密实而规整的外立面,设计先以建筑解构入手,参考周围老房子的尺度,由内到外将整栋建筑纵向一切为四,并在其中添加内庭院,上下并联起四个体量。再结合屋顶露台不同高度的活动区域,添加半透遮阳篷,赋予外立面高低错落的“四重奏”效果。
Faced with the dense and rigid façade of the original structure, the design began with a deconstructive approach. Drawing on the scale and spatial rhythm of the surrounding old houses, the building was vertically divided into four volumes from the inside out, with inner courtyards inserted in between. These four volumes were then interconnected vertically and horizontally. Varying rooftop terraces and semi-transparent shading canopies were introduced, generating a dynamic composition of staggered heights—what the architects describe as a “quartet” of forms.
同时,为了给原建筑“减重”,建筑师借鉴传统布匹编织的原理,将20mmX40mm的铝方通漆成三面红一面白,排列成细细的格栅包裹建筑立面,而固定在立面的构件如同织布机的梭子带领“纬线”与“经线”交错,为原本敦实的建筑“织入”丝丝缕缕的“双色纱线”,构筑出一个轻盈灵透的建筑体量。
To visually “lighten” the mass of the original building, the architects took inspiration from traditional textile weaving. Aluminum square tubes measuring 20mm x 40mm were painted red on three sides and white on one, then arranged into a fine lattice that wraps the entire façade. Structural elements fixed to the façade act like the shuttles of a loom, guiding the interplay of “warp” and “weft,” and weaving strands of dual-colored “yarn” into the building’s skin. The result is a mass that feels both delicate and diaphanous.
对于外立面格栅,建筑师担心铝方通过于理性、有序,遂进一步的针对格栅排列疏密进行了细化:格栅间为不等分间距,上下分段也呈现出上密下疏的立面构成,尤其露台部分的格栅,呈现更多维度的交错,更能体现出外表皮的“编织感”。
Concerned that the aluminum lattice might appear too rational and mechanical, the design team refined the arrangement by varying the spacing of the slats. The gaps between the tubes are intentionally irregular, and the upper and lower sections are treated differently—with denser patterns above and more open ones below. Particularly on the terrace levels, the lattice introduces multidimensional interweaving, further amplifying the sense of “woven skin.”
清晨,随着日光照进山谷内的村庄,光影便开始在格栅上展开“编织”,被漆成正面白三面红的铝方通,使得建筑立面始终在进行着不易察觉的颜色变化。这也意味着,在不同日子到访织美术馆,也许将拥有截然迥异的印象:晴日的午后,美术馆会呈现出通透明亮的粉色;而雨雪天气下,则会化为一座静谧的白房子。
In the early morning, as sunlight begins to filter into the mountain village, light and shadow begin to “weave” across the façade. Thanks to the red-and-white orientation of the aluminum slats, the building takes on subtle and ever-shifting hues throughout the day. This means that each visit to the Z Museum may offer a distinct impression: on bright, sunny afternoons, it may appear as a translucent pink volume; on rainy or snowy days, it becomes a serene, white monolith.
绕着“光井”向上行进
Ascending Around a Shaft of Light
建筑师希望将焦点充分给到艺术作品,室内设计上尽量少做加法,只对动线和内外空间关系进行梳理。
In order to give full focus to the artworks, the architects intentionally minimized additive interior design interventions, instead prioritizing the clarity of circulation and the relationship between interior and exterior spaces.
首先在入口的夯土老房子内部设置“序厅”这样一处安静的暗空间。序厅室内除门窗套,老虎窗增加了红色钢板造型外,基本维持老房子原貌,意在通过美术馆内外几重空间氛围的对比,让观众在观展前先得到情境上的转换。
The journey begins in the adjacent rammed-earth structure, where a “prologue hall” has been inserted—a quiet, dimly lit space. Aside from red-painted steel cladding added to the window frames and a traditional “tiger window,” the room largely preserves the original appearance of the old house. By contrasting this subdued spatial atmosphere with the contemporary interior of the main building, visitors undergo a sensory transition before entering the main exhibition areas.
继而增设天窗,在主体建筑中引入一个垂直贯通上下三层的中庭“光井”,在为室内引入更多自然光与温度的同时,联通各个水平空间。每一层的展厅都环绕着中庭布置,同时观者又可以在不同楼层互望彼此。
A new skylight was introduced by carving out a vertical atrium—a “light well”—that spans all three levels of the main structure. This shaft allows natural light and ambient warmth to penetrate deep into the interior, while also visually and physically connecting the horizontal spaces on each floor. Exhibition halls on each level are arranged around this central void, allowing visitors to glimpse others moving through the museum from different vantage points.
最后将原建筑的开窗,结合外部环境及景观进行调整,这种“二次取景”能够让窗外村落与馆内展品形成呼应、对话。而楼梯间的外墙则设计了较大开洞,将三层变成半户外空间,视线跟行为上都增加了与外部村庄的互动。
Original window openings were reconfigured in response to the surrounding landscape. This strategy of “secondary framing” allows curated views of the village to dialogue with the artworks on display, subtly bridging the museum interior with the rural context. Meanwhile, large new openings were carved into the stairwell’s exterior wall, transforming the third floor into a semi-outdoor space—visually and experientially reinforcing the museum’s relationship with the village.
行进至露台,已可直接眺望整个松庄村。统一的墙、地面材质,没有刻意的功能分区,仅以不同高差对人的行为进行最低限度的引导,让身处此处的观众充分感受到自然与放松。
Upon reaching the rooftop terrace, visitors are offered an unobstructed panoramic view of Songzhuang Village. The uniform wall and ground materials, along with the absence of deliberate functional zoning, only minimally guide people's behavior through varying elevations, allowing visitors here to fully experience nature and relaxation.
值得一提的是,建筑师也专门为织美术馆的咖啡厅及商店设计了“纟”系列家具,其灵感皆来源于传统织布机的形态。家具以20*20mm的方管为框架,在上面用20mm宽的定制红色织带缠绕拉紧并固定在方管上,形成平面和斜面的造型。织带的间距同时也呼应了外立面格栅的编织语言,希望“纱线”能从室外延伸进室内。
Notably, the architects also designed a custom “LOOM” furniture series for the museum’s café and shop, inspired by the forms of traditional looms. Constructed with 20×20mm square steel tubes as frames, each piece is wrapped and tensioned with 20mm-wide custom red woven straps to create both horizontal and angled surfaces. The spacing of these woven elements echoes the façade’s lattice system, extending the woven “thread” motif from exterior to interior.


▲模型 MODEL

▲施工阶段肌理涂料打样 TEXTURE COATING PROOFING OF CONSTRUCTION PERIOD

▲一层平面图 1F PLAN

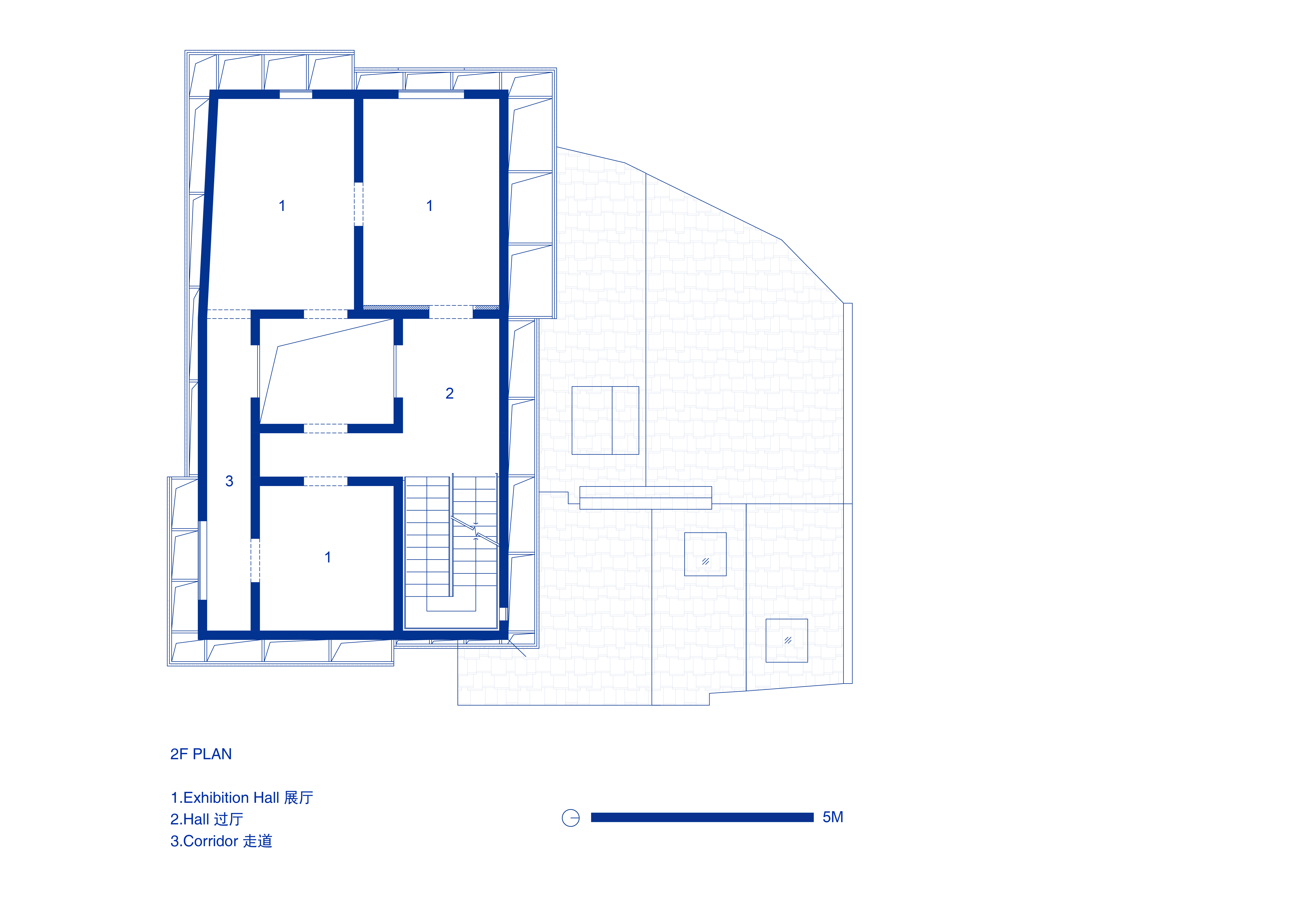
▲二层平面图 2F PLAN

▲三层平面图 3F PLAN

▲屋顶平面图 ROOF PLAN

▲东立面图 EAST ELEVATION

▲南立面图 SOUTH ELEVATION

▲西立面图 WEST ELEVATION

▲北立面图 NORTH ELEVATION

▲剖面图 SECTION

▲概念分析图 CONCEPT DIAGRAM