2023年,雕塑家蒋晟个览《敞开的平原》在中国河北省承德市金山岭举行。该展览选址于一处山脉连绵、植被葱茏的山谷中;目之所及的北侧山峦上,屹立着一道始建于明代的古长城遗迹。
In 2023, the sculptor Sheng Jiang's solo exhibition, Being In The Open Field, was held in Jinshanling, Chengde City, Hebei Province, China. The exhibition is located in a valley with endless mountain ranges and lush plants, and the ancient Great Wall relic, built in the Ming Dynasty, stand tall on the northern mountain range that comes into view.
展览位于金山岭已开发区域的终端,并且多数展品被安置在由大舍设计的地景式建筑金山岭上院内部,这使得展览的视觉昭示感与观展动线相对隐匿。蒋家班因此委托TEAM_BLDG间筑设计,在展场之外的山谷间引入一项户外装置,以作为贯穿展览始末的“线索”。
The exhibition is located at the end of the developed area of Jinshanling, and most of the exhibits are placed inside the landscaped architecture Jinshanling The Upper designed by Atelier Deshaus, which makes the visual sense and the visiting route of the exhibition hidden relatively. Therefore, the JIANGS commissioned TEAM_BLDG to design an outdoor installation in the valley outside the exhibition venue, which will serve as a“clue”throughout the exhibition.
既像树木,又似轻幔
Like Trees, Like Light Curtains
初次抵达基地时,嶙峋的崖壁、古长城遗址,以及附着于地形的混凝土钢结构建筑、雕塑家蒋晟的佛像与石雕物件,都呈现出某种十分坚硬的固态特征。我们希望能获得一个相对柔软且轻盈的装置与硬质景观形成互补;在构思中,这项装置应如同自然界中的树木,可以捕捉风,同时也能为行走在石砌展道上的人们提供庇护。因此,我们与蒋晟不约而同地想到了藏传佛教中的经幡,把它作为设计的发源。
When arriving at the site for the first time, the rugged cliff, the ancient Great Wall relic, as well as the architecture with concrete and steel structures attached to the terrain, the Buddha statues and stone sculptures by sculptor Sheng Jiang, all present a very hard characteristic. We want to achieve a relatively soft and light installation that complement the hard landscape. In our conception, the installation should like a natural tree, it can capture the wind while also providing shelter for someone who walking on the stone-paved exhibition path. Therefore, Sheng Jiang and us thought of the prayer flags from Tibetan Buddhist simultaneously and used it as the inspiration for the design.
“飘浮的风幡”装置
“The Floating Wind Flag”Installation
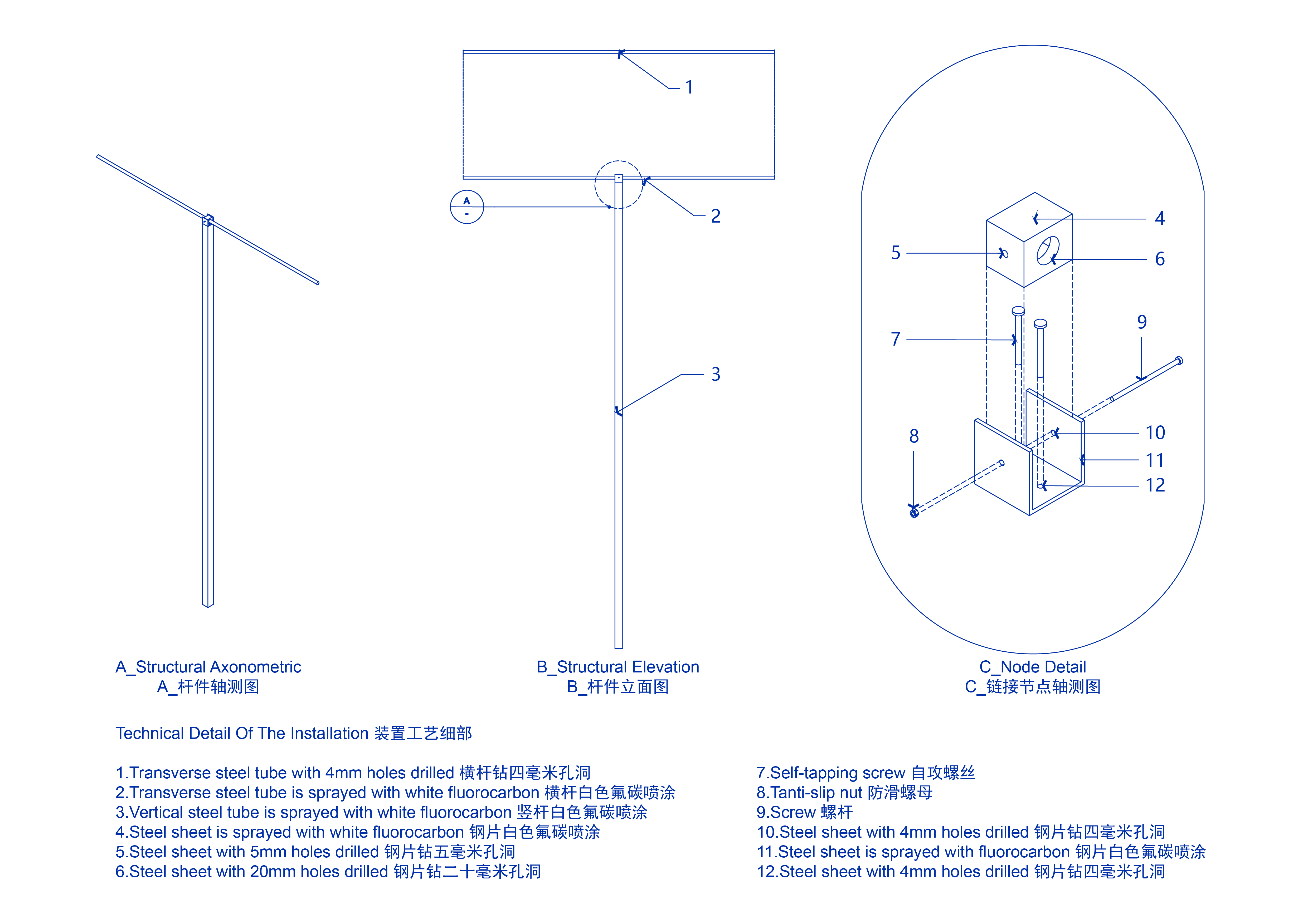
展览的开端,“幡”装置初现。在起伏风幡下穿行的“体验”将访者拉进展厅。装置使用了约40个3M*2M的T型钢管单元组成阵列布局,通过横向杆件连接起总长逾120米的白色天丝柔纱布。钢管铰接节点允许悬挂的布料随风摆荡,带动装置产生形状的自然变化。装置台基与退台式的观展动线重合,每组T型钢管可以根据现场展道的高度及长度进行灵活调整。轻盈的“幡”与北侧山峦上的古长城对望,在亘古的环境里形成某种对话与平衡。
At the beginning of the exhibition,“The Fan”installation appeared. The “experience”about walking under the undulating wind flags leads visitors into the exhibition hall. The installation uses about 40 3M*2M T-shaped steel pipe units to form an array layout, and connects a total length of more than 120 meters of white soft gauze through transverse rods. Articulated joints in the steel tubes allow the suspended fabric to swing in the wind, causing the installation to naturally change shape. The foundation of the installation coincides with the terraced exhibition route, and each set of T-shaped steel pipes can be flexibly adjusted according to the height and length of the stone-paved exhibition path. Light“The Fan”face the ancient Great Wall on the mountains to the north, they create dialogue and balance in the eternal environment.
钢杆结构、天丝柔纱布,稳定而契合山路的混凝土台基铺设之外,没有一丝冗余的修饰,设计希望通过“所见即所得”的简明形式向来访者演绎最基本的构造。
Apart from the steel pole structure, soft gauze and concrete foundation that is stable and suitable for the mountain road, this installation has no superfluous decorations. The design hopes to interpret the most basic structure to visitors through a concise form of “what you see is what you get”.
耳识的线索
Auditory Clue
作为展览的线索,为了在山路上达到先闻其声的效果,我们在装置每组T型结构的两段横向杆件中嵌入了铃铛,风动装置在幽静山谷中随风摆动时,杆内铃铛便会随之响起来。风铃在佛教有“惊觉”、“欢喜”之意,风吹铃动的清亮之音使移动中的观者产生听觉上的特殊体验。
As a clue to the exhibition, we embedded bells in the two transverse rods of each installation T-shaped structure in order to create the effect of hearing their sound first on the mountain road. When the pneumatic installation swings with the wind in the quiet valley, the bells in the pole will ring. Wind chimes have the meaning of “surprise” and “joy” in Buddhism. The clear wind sound blowing the chimes gives the moving viewer a special auditory experience.
手工组装与搭建
Assembly And Construction By Hand
为提高施工的精准度,我们以1:1的尺度分别在间筑上海办公室与工厂进行了多次的装置打样,人工模拟风压与雨水环境,测试完成后将所有的预制构件运至金山岭基地进行现场组装与预搭建。
In order to improve the accuracy of construction, we did a lot of installation proofing at the Shanghai office and factory at a 1:1 scale, artificially simulating wind pressure and rainwater environments in the process. After the testing was completed, all prefabricated components were transported to Jinshanling site performs on-site assembly and pre-construction.
预搭建期间正值秋天,山谷里的实际风压远超出了我们初期的预测范围,顶部布料无法承受过强的风载而导致装置发生翻倒。随后,基于对实际环境的深入分析和预搭建经验,我们进一步对装置结构、锚固节点进行了优化。经历反复的测试后,最终在有限的2天时间里,以手工的方式完成了“幡”装置一段段组装与搭建。因T型结构具有比较高的灵活性,山路上偶然突出的石块或凹陷的空间也能与装置很好地退让或嵌合,因此最终现场看到的“幡”呈现出顺应周边山地之势的契合状态。
The pre-construction period was autumn, and the actual wind pressure in the valley far exceeded our initial prediction range. The top fabric could not withstand the excessive wind load, causing the installation to overturn. Subsequently, we further optimized the installation structure and anchoring nodes based on in-depth analysis of the actual environment and pre-construction experience. After repeated tests, we finally manually completed the assembly and construction of “The Fan”in a limited time of 2 days. Due to the high flexibility of the T-shaped structure, the occasional protruding stones or sunken spaces on the mountain road can be well accommodated with the installation. Therefore, “The Fan”on site showed a state of fit that conforms to the surrounding mountainous terrain finally.
结语
Conclusion
在展览中,阳光照射下的“幡”吸引来甲虫和鸟类落在装置表面,人在“幡”下可以望见这些山谷原主人们的剪影。徐风夕照的时刻,装置有如佛像随风飘动的衣纹,让寻常的石砌展道产生一股“非日常性”的仪式感,为参观者带去多一层的感知体验。
In the exhibition, “The Fan”illuminated by sunlight attract beetles and birds to land on the surface of the installation. People can see the silhouettes from the original owners of the valley under“The Fan”.When the setting sun shines in the breeze, the installation likes the clothing texture of the Buddha statues fluttering in the wind. It gives ordinary stone-paved exhibition path an “unusual”sense of ritual and brings an extra sensory experience to visitors.

▲装置总平面图 MASTER PLAN OF INSTALLATION

▲装置工艺细部 DETAIL OF INSTALLATION